Casa da Colina
T3 + 1 | ABC 243m2 | Lote 2.880m2 | Vista panorâmica
Uma casa de sonho
Seguindo uma arquitetura minimalista, a amplitude dos vãos e a vista panorâmica oferecem um bem estar único. A vinha que será mantida em toda a extensão da propriedade oferece diferentes tons ao longo do ano.
Destacamos também os elementos naturais utilizados na arquitetura da casa e a envolvente campestre e tranquila.

Vista panorâmica
A Lezíria vista do cimo da Charneca Ribatejana
Arquitetura Contemporânea
Arquitetura interior
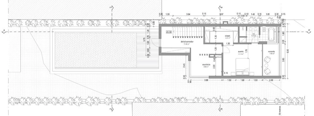
A moradia é constituído por duas volumetrias - uma com um único piso e outra com dois pisos.
No piso 0 são dispostos os compartimentos e espaços sociais num único espaço em open space – cozinha, sala de estar e sala de jantar.
Também neste piso, são dispostos dois quartos, com instalação sanitária partilhada.
No piso 1 é proposta uma zona de trabalho (escritório) e a suite principal, com casa de banho equipada com base de duche e banheira.
O quarto dispõe também de closet e varanda privativa, com vistas sobre a propriedade.
Preço: 45.000€ ( com projeto aprovado e pronto a construir)
Características e Preço
Plantas
Calendário
-
Arquitetura
Projeto de Arquitetura Aprovado
Estudo prévio e Licenciamento
6 Meses
-
Especialidades
Desenvolvimento dos projetos de
especialidades
3 Meses
-
Construção
Discussão do Orçamento e Empreitadas
Contratualização e Execução
2 + 18 meses